Keenland
Overview
Features
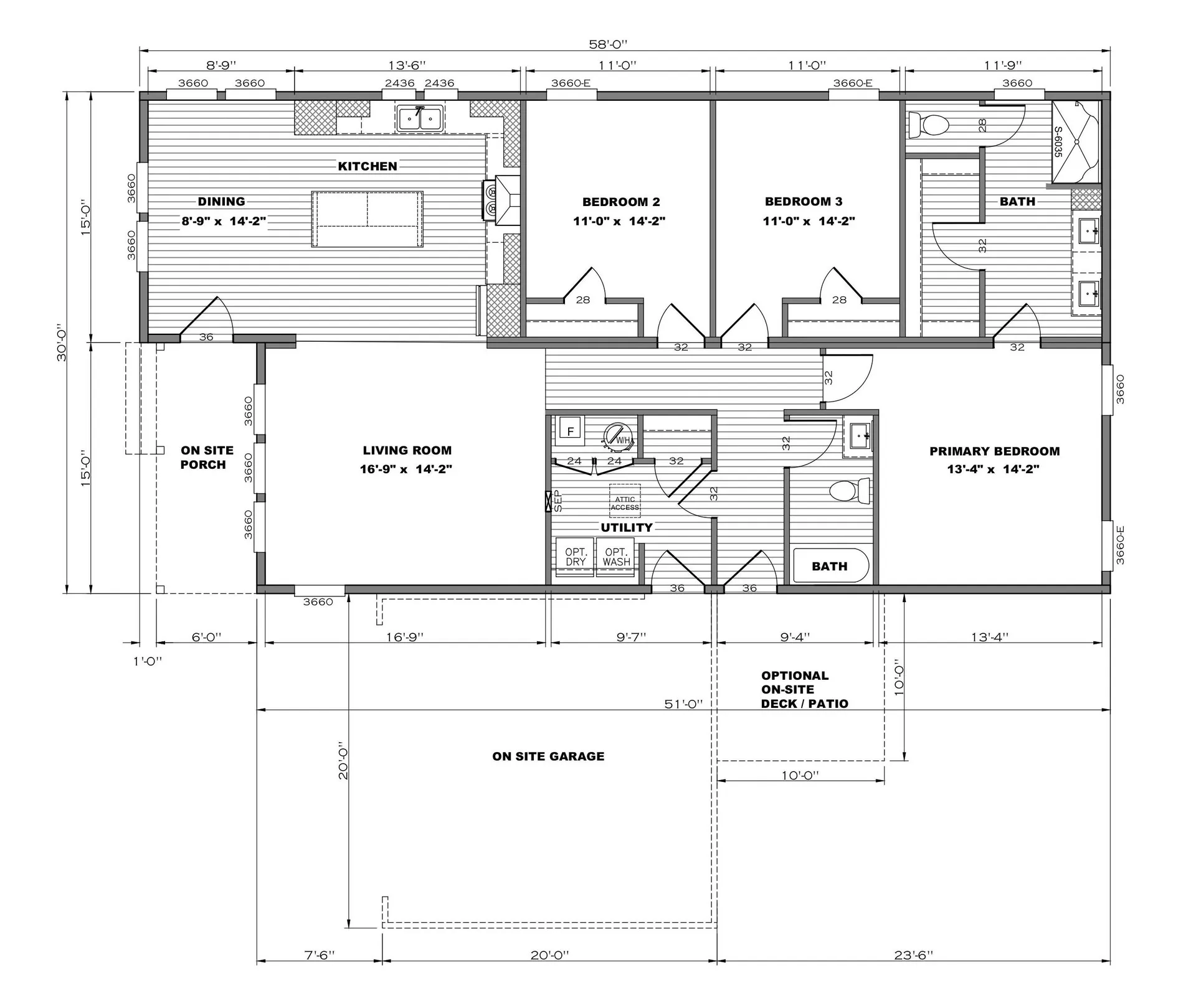
Floor Plan
- IN STOCK
- MOVE-IN READY
Keenland
3 beds
2 baths
1,453 sq. ft.
0.6 acres
† Images may show options not included in base price
Overview
Keenland - Clayton - 30'x58' - 3bedroom/2bathroom - CrossMod Move In Ready home available NOW! This home is for sale now and located in the NEW Westgate Heights Development. This land/home package is load! It comes with a paved driveway, covered porches, attached garages, concrete pathways and patios, hardwood cabinets, upgraded flooring and it all sits on half an acre of land THAT YOU OWN! This new CrossMod is perfect for a new family looking to move into a quiet and family friendly location. Only 15 minuets away from all the local restaurants and attractions. This location blends being close to the action with having a remote quiet home location. This home comes Energy efficient and with a 5 year home buyer protection plan. If you are looking for a budget friendly new home in Utica, NY look no further than the Westgate Heights Development. Click the link below to visit the website for more information. https://www.westgateheightsny.com
Location
158 Westgate Drive, Utica, NY 13502
Features
Move-In Ready
5' Poured foundation
Hardwood cabinets
LVP flooring
Attached garages
Covered front porch
Paved driveways
Concrete sidewalks
5/12 roof pitch
.6 acres of land
Upgraded Insulation
Floor Plan

We accept trades!
Find a new home you love? Contact us for more information about our trade-in requirements and to schedule your free trade evaluation.
Learn MoreLearn More About this Property
Clayton Homes of Frankfort
- Brokerage Phone: (315) 732-6136
- Listing Agent Email: hc1061@claytonhomes.com
Copyright © 2025 Knoxville Area Association of Realtors ®. All rights reserved. All information provided by the listing agent/broker is deemed reliable but is not guaranteed and should be independently verified.



